特點
海灣GST-LD-N8401(Ex)總線隔離式安全柵采用隔離式安全柵設計方案,用于連接需接入普通總線的 本安編碼產品,組成本質安全型防爆系統。安全柵應安裝在安全區域。本安側短路不影響非本安側, 完全用硬件實現信號轉換,信號延遲低。
主要技術指標
(1) 工作電壓: 信號總線電壓:24V; 允許范圍:16V~28V 電源總線電壓:DC24V; 允許范圍:DC20V~DC28V
(2) 工作電流: 總線:電流<2.5mA DC24V:電流<150mA
(3) 設備容量:最多可配接 32 只本安編碼設備。
(4) 本安參數:Um: 250V Uo:28V Io:115mA Po:0.8W Co:0.083μF Lo:4mH
(5) 使用環境:溫度: -10℃~+55℃ 相對濕度≤95%,不凝露
(6) 安全柵防護等級:IP30
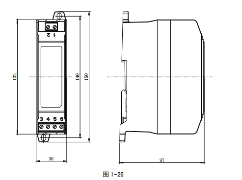
(7) 安全柵外形尺寸:150mm×97mm×36mm
結構特征、安裝與布線
(1) 安全柵的外形示意圖如圖 1-26 所示。

(2) 安裝:安全柵可以直接安裝于寬度為 35mm 的標準 DIN 導軌,如圖 1-27 所示。在不具備導軌 安裝條件時,可以通過上下兩個安裝孔,使用 M4 螺釘或 ST4.2 自攻螺釘(可選配塑料膨脹 管)進行安裝,如圖 1-28 所示。

接線
安全柵端口通過插拔式端子(包括端子頭和端子座)同其他設備連接,將電纜線安裝在端 子頭上后,端子頭正確插在端子座上確定穩固連接即可。
端子說明 接線端子如圖 1-29 所示。

Z1、Z2:非本安側總線輸入,無極性
D1、D2:DC24V 電源輸入,無極性
ZO+、ZO-:本安側總線輸出
注意:安全柵應安裝在安全區域,本安側和非本安側接線應分開,并保持一定距離(至少為 50mm)。
(5) 布線要求
信號總線 Z1、Z2 采用耐火 RVS 型雙絞線,截面積≥1.0mm2 ;電源線 D1、D2 采用耐火 BV 線,截 面積≥1.5mm2 。安全柵至本安編碼設備應選用截面積≥1.0mm2 的本安電纜,且電纜間分布電容不得 大于 0.083μF,分布電感不得大于 4.0mH。
應用方法
每個總線隔離式安全柵最多可配接 32 只本安編碼設備,安全柵應用示意圖如圖 1-30 所示。



蘇公網安備32058102002318號
客服1